London Road, Copford, Colchester

£2,250,000 Price

Summary

A rare opportunity to acquire a consented commercial development site of approximately 2.89 acres with planning granted for 45,725 Sq Ft of office space offering a potential return in the region of £1,000,000 PA once developed. The site is located in a recessed position off of London Road, Copford approximately one mile from the A12 and Marks Tey station with links to London Liverpool Street in under an hour.

Features

  • 2.89 Acres
  • Full Planning Approved for 45,725 Sq Ft of Office Space
  • Potential Rental Income of £1,000,000 PA
  • 141 Car Parking Spaces
  • Close to A12 & Marks Tey Station
  • Copford, Colchester
  • £2,250,000 +VAT

Files

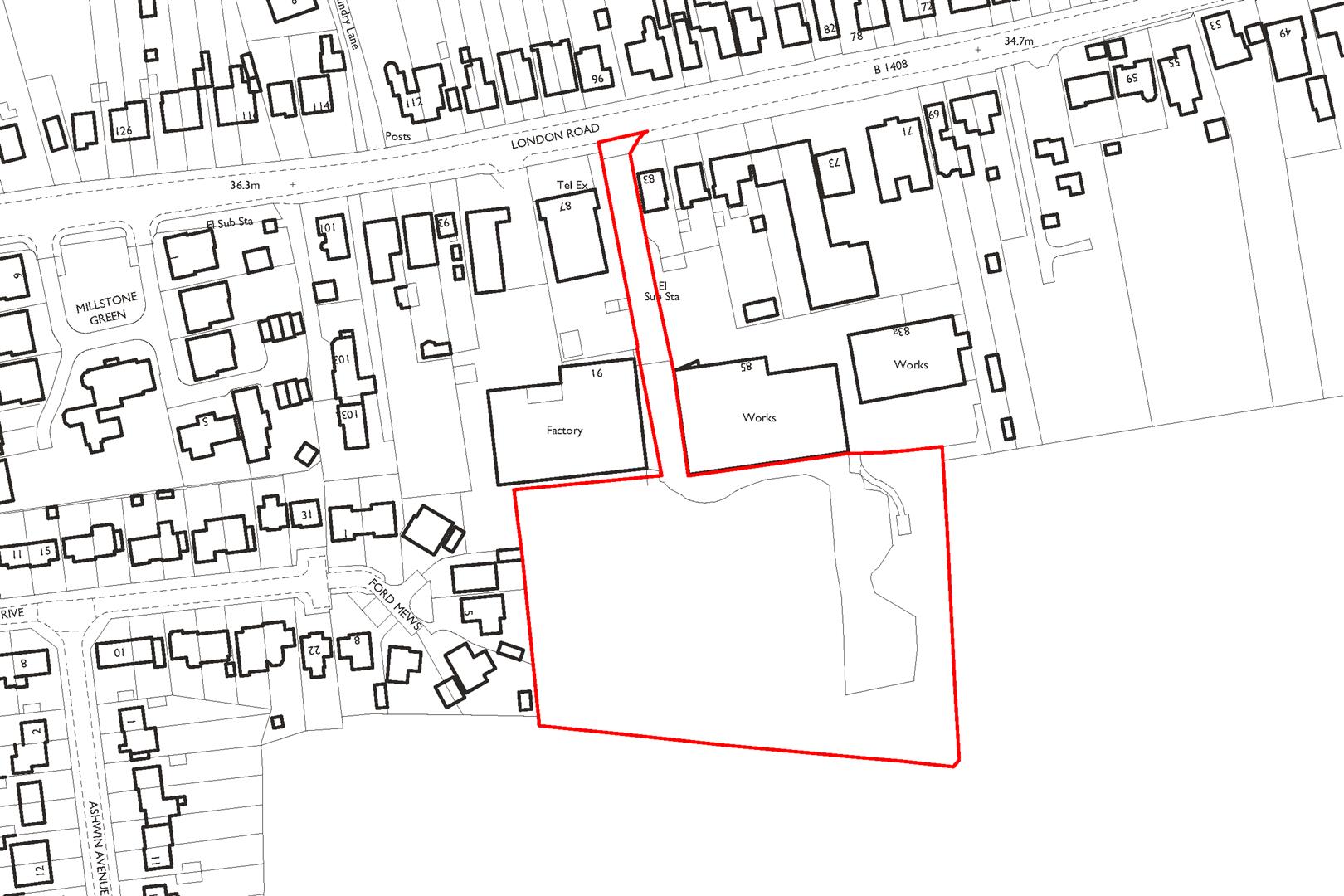
THE SITE
A rectangular parcel with concrete access road from London Road, approximately 2.89 acres in total. The access road measures approximately 9m at the narrowest point. The site is predominantly flat and covered with grass & shrubs with tree/shrubs to the perimeter. Please note neighbouring commercial properties have rights of access over the road.

PLANNING
Reference: 230049
Planning Authority: Colchester City Council
Approval Date: 10th March 2025
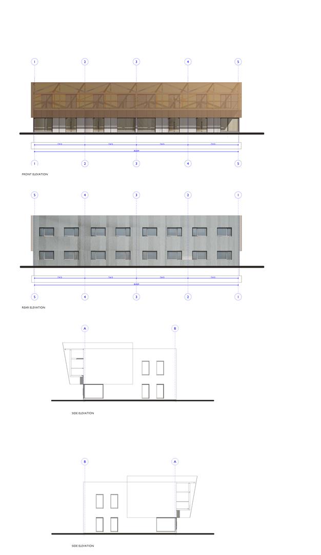
Description: Erection of Business Park comprising of 4248 SQM of Class E(g)(i) (office) Use and 141 Car Parking spaces
Commencement: The development shall be begun before the expiration of three years from 10th March 2025

For a copy of all associated documents please contact the office.

SCHEDULE OF ACCOMMODATION
The development comprises 4x detached blocks of up to 44 individual office units between 980 & 1023 Sq Ft over ground and first floors. We anticipate an achievable rent of £22.50 per Sq Ft giving a potential rental yield of £997,290 PA.

For a copy of the detailed schedule of accommodation, please contact the office.

VAT
We are advised that the site is elected for VAT and therefore VAT will be applied to the sale price.

AGENTS NOTES
1) 14x parking spaces are to be retained by the neighbouring property (85 London Road).

Request a viewing on London Road, Copford, Colchester.